Lernen & Entdecken

Gebäudedigitalisierung, erklärt.

Von der ersten Frage bis zum operativen Digital Twin. So arbeiten wir.

UNSERE METHODE

Strategie vor dem Scan.

Unsere Methode ist mehr als ein technischer Prozess. Sie ist eine kollaborative Reise, die Ihre physische Infrastruktur in Ihr wertvollstes digitales Asset verwandelt.

Wir begleiten Sie in jeder Phase und stellen sicher, dass die Lösung nicht nur technisch präzise, sondern strategisch wirksam ist.

Entdeckung und Anforderungsanalyse

Es beginnt damit, Ihr „Warum” zu verstehen

Jedes Projekt beginnt mit einer gründlichen Auseinandersetzung mit Ihren spezifischen Herausforderungen und strategischen Zielen. In einer gemeinsamen Beratung gehen wir über die Oberfläche hinaus, um Ihre aktuellen Prozesse zu bewerten und genau zu ermitteln, wo unsere digitalen Lösungen die größte Wirkung für Ihr Unternehmen erzielen können.

Wichtige Aktivitäten:
  • Gemeinsame Workshops zur Definition der Ziele
  • Bewertung bestehender Prozesse und Schwachstellen
  • Identifizierung der wichtigsten Stakeholder und Anwendungsfälle
  • Strategisches Lösungsdesign

    Entwurf Ihres individuellen digitalen Konzepts

    Auf Grundlage unserer Analysephase erstellen wir gemeinsam einen strategischen Plan, der auf Ihre individuellen Herausforderungen zugeschnitten ist. In einem kooperativen Prozess definieren wir den genauen Umfang, den technischen Ansatz und den Projektfahrplan, um sicherzustellen, dass die digitale Lösung einen maximalen Mehrwert bietet.

    Wichtige Ergebnisse:
  • Maßgeschneidertes Lösungskonzept
  • Detaillierter Projektumfang und Spezifikationen
  • Klare Projekt-Roadmap und Zeitplan
  • Digitalisierung

    Umsetzung des Plans mit kompromissloser Präzision

    Nach der Genehmigung des strategischen Plans führt unser Team die Digitalisierungsphase durch. Wir erfassen Ihre Umgebung mit hochpräziser 3D-Scantechnologie. Die Rohdaten werden anschließend sorgfältig verarbeitet und optimiert, um eine genaue, zuverlässige und hochwertige digitale Darstellung Ihrer Anlagen zu erstellen.

    Wichtige Aktivitäten:
  • Hochpräzises 3D-Laserscanning
  • Punktwolkenverarbeitung und -optimierung
  • Intelligente Scan-to-BIM-Modellierung
  • Aktivierung und Wertrealisierung

    Verwandeln Sie Ihre Daten in verwertbare Informationen

    Die wahre Stärke eines digitalen Zwillings liegt in seiner Anwendung. Wir übergeben Ihnen nicht einfach nur eine Datei, sondern arbeiten mit Ihnen zusammen, um Ihr neues digitales Asset zu aktivieren. Wir sorgen dafür, dass es in Ihre Arbeitsabläufe integriert wird, sodass Ihre Teams intelligentere Entscheidungen treffen, Abläufe optimieren und durch Zeit-, Kosten- und Materialeinsparungen einen messbaren Return on Investment erzielen können.

    Wichtige Ergebnisse für Sie:
  • Eine „einzige Quelle der Wahrheit” für alle Beteiligten
  • Verbesserte, datengestützte Entscheidungsfindung
  • Messbarer ROI und kontinuierliche strategische Unterstützung
  • UNSER LEISTUNGSSPEKTRUM

    Das Fundament für Ihre digitale Zukunft.

    Jedes Projekt ist einzigartig, unser Werkzeugkasten ist umfassend. Wir liefern ein breites Spektrum digitaler Assets aus der initialen Reality Capture, jedes zugeschnitten auf spezifische Herausforderungen.

    Die Kern-Deliverables, die das Fundament unserer Kundenprojekte bilden, bleiben in dieser Sektion unverändert.

    Interaktiver Web-Viewer

    Ihr primäres Fenster zu Ihrem digitalen Zwilling. Es ist über jeden Webbrowser zugänglich und ermöglicht Ihren Teams mit nur wenigen Klicks immersive 360°-Begehungen, die Anzeige der detaillierten Punktwolke und präzise Messungen.

    Geodätische Vermessung und Kontrollpunkte

    Die Grundlage für einen vertrauenswürdigen digitalen Zwilling. Wir richten ein Netzwerk aus festen Kontrollpunkten ein, um die Zuverlässigkeit und technische Genauigkeit Ihrer endgültigen digitalen Assets zu gewährleisten.

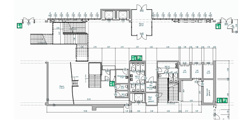
    Bestandspläne in 2D

    Hochpräzise 2D-Layouts (Grundrisse, Schnitte, Ansichten), die direkt aus den Punktwolkendaten erstellt werden und den tatsächlichen aktuellen Zustand Ihrer Anlage mit millimetergenauer Präzision darstellen.

    BIM Model

    Scan-to-BIM & 3D-Modelle

    Scan-to-BIM & 3D-Modelle Unser leistungsstärkstes Produkt. Wir wandeln Ihre Punktwolke entweder in ein geometrisch genaues 3D-Modell zur Visualisierung oder in ein intelligentes BIM-Modell um, in dem jedes Objekt umfangreiche alphanumerische Daten für ein vollständiges Lebenszyklusmanagement enthält.

    Scan-to-Mesh

    Eine leichtgewichtige 3D-Oberflächendarstellung Ihrer Anlage, ideal für die konzeptionelle Nachrüstungsplanung, Virtual-Reality-Begehungen und visuelle Präsentationen, bei denen Geschwindigkeit und Effizienz entscheidend sind.

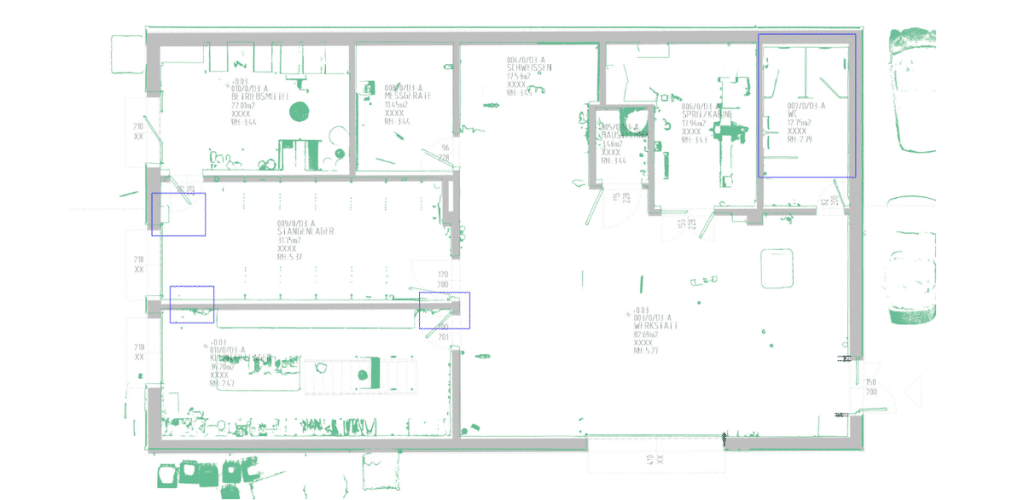
    2D-Plan und Abweichungsanalyse

    Ein leistungsstarkes Diagnosetool, mit dem wir die präzisen Punktwolkendaten über Ihre aktuellen 2D-Pläne legen, um Abweichungen und veraltete Bereiche sofort visuell zu identifizieren.

    Clash & Wall Detection

    3D-Kollision & Wandunregelmäßigkeiten

    Ein wichtiger Service zur Risikominimierung, der mithilfe des digitalen Zwillings proaktiv Konflikte zwischen Gebäudesystemen identifiziert und Unebenheiten in Wänden vor der Installation aufdeckt – so vermeiden Sie falsch ausgerichtete Armaturen, kostspielige Nacharbeiten und Verzögerungen.

    Punktwolkenvisualisierung und Fly-Throughs

    Wir verwandeln Ihre Rohdaten in atemberaubende, filmreife Fly-Throughs für wirkungsvolles Marketing, immersive Projektpräsentationen und intuitive virtuelle Rundgänge, die komplexe Räume leicht verständlich machen.

     

    the qapture experience

    qapture im Einsatz.

    Strategie und Präzision zählen nur, wenn sie von Menschen geliefert werden, die wissen, was sie vor Ort tun. Hier bekommen Sie einen Blick hinter die Kulissen: unsere Teams im Einsatz mit modernster Reality-Capture-Technologie, in enger Zusammenarbeit mit Kunden und bei der Bewältigung realer Komplexität in laufenden Gebäuden.

    LET'S TALK

    Bereit zu starten, oder noch in der Orientierungsphase?

    Ob Sie ein konkretes Projekt im Kopf haben oder noch herausfinden, welche Rolle Gebäudedigitalisierung in Ihrer Organisation spielen soll: Wir reden gerne. Kein Pitch, kein Druck. Einfach ein offenes Gespräch darüber, was für Sie Sinn ergibt.